branding nieruchomosci

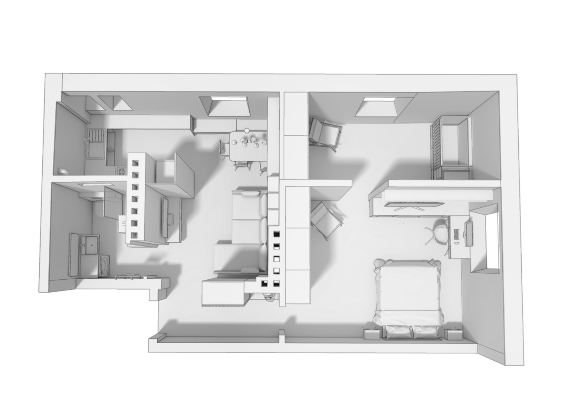
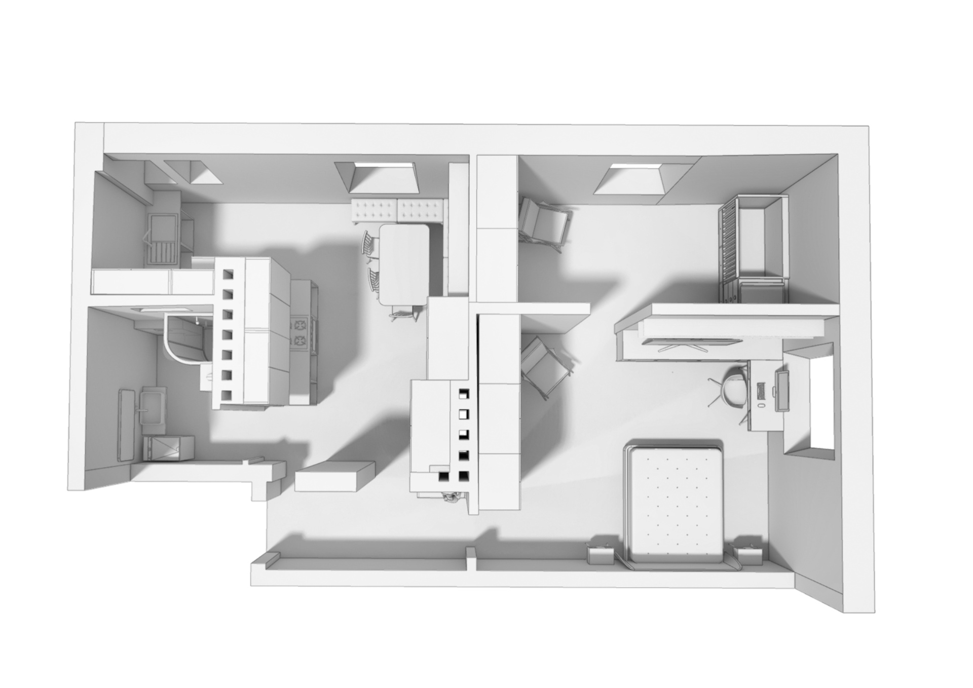
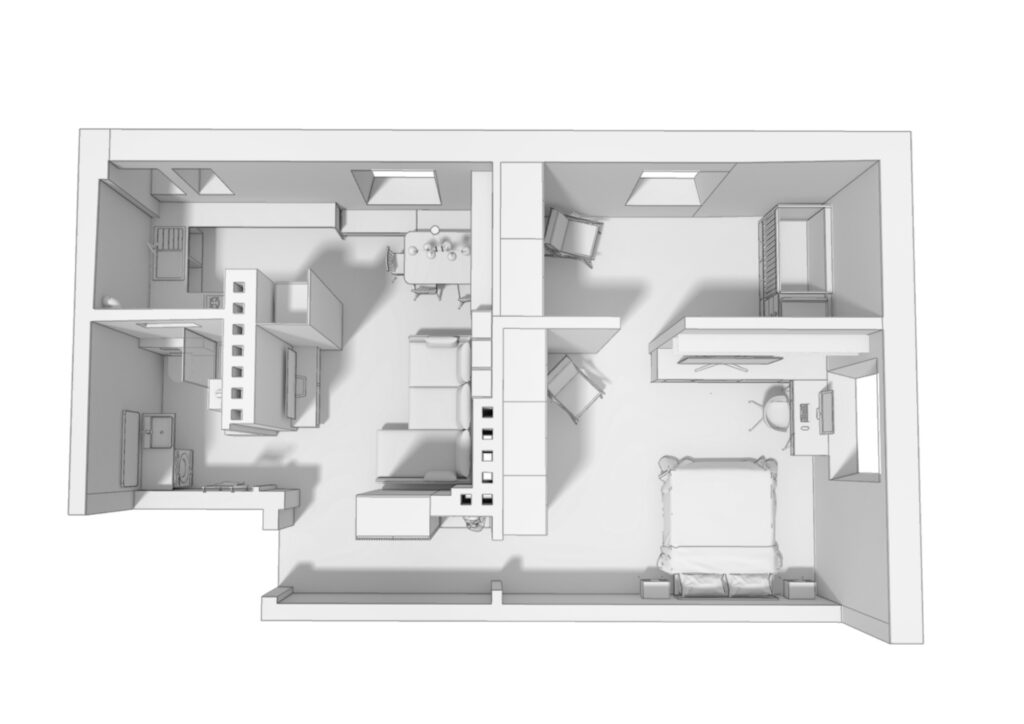
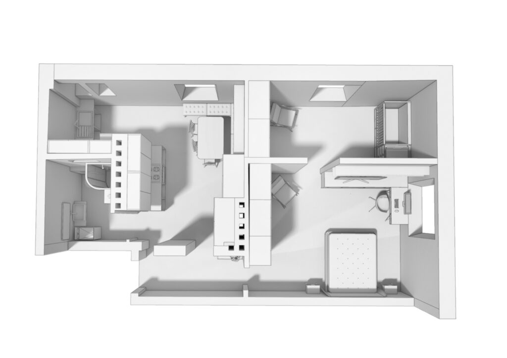
Mieszkanie w kamienicy

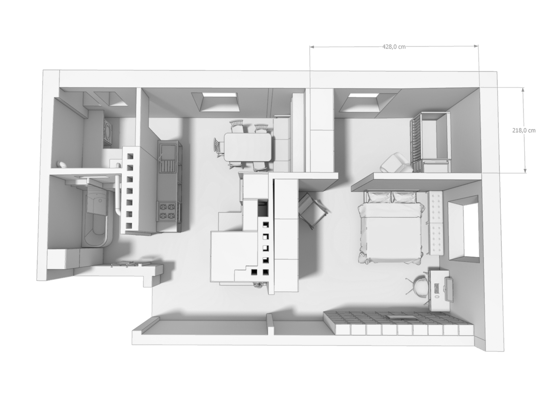
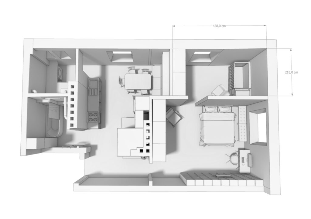
Rzut 2D mieszkania do ogłoszenia sprzedaży

POWIERZCHNIA

61 m2

lokal

mieszkanie w kamienicy

INWESTOR

prywatny

Na podstawie odręcznego rysunku inwentaryzacji stworzyłam rzut 2D mieszkania w kamienicy. W ramach zlecenia zaproponowałam kilka wariantów układu funkcjonalnego, dostosowanych do różnych grup docelowych klientów. Opracowałam również rzut 2D stanu istniejącego lokalu na potrzeby ogłoszenia sprzedaży. Dzięki tym materiałom Inwestor otrzymał elastyczne i profesjonalne narzędzie wspierające skuteczną sprzedaż nieruchomości.